Our Concept & Vision
The overall design philosophy is:
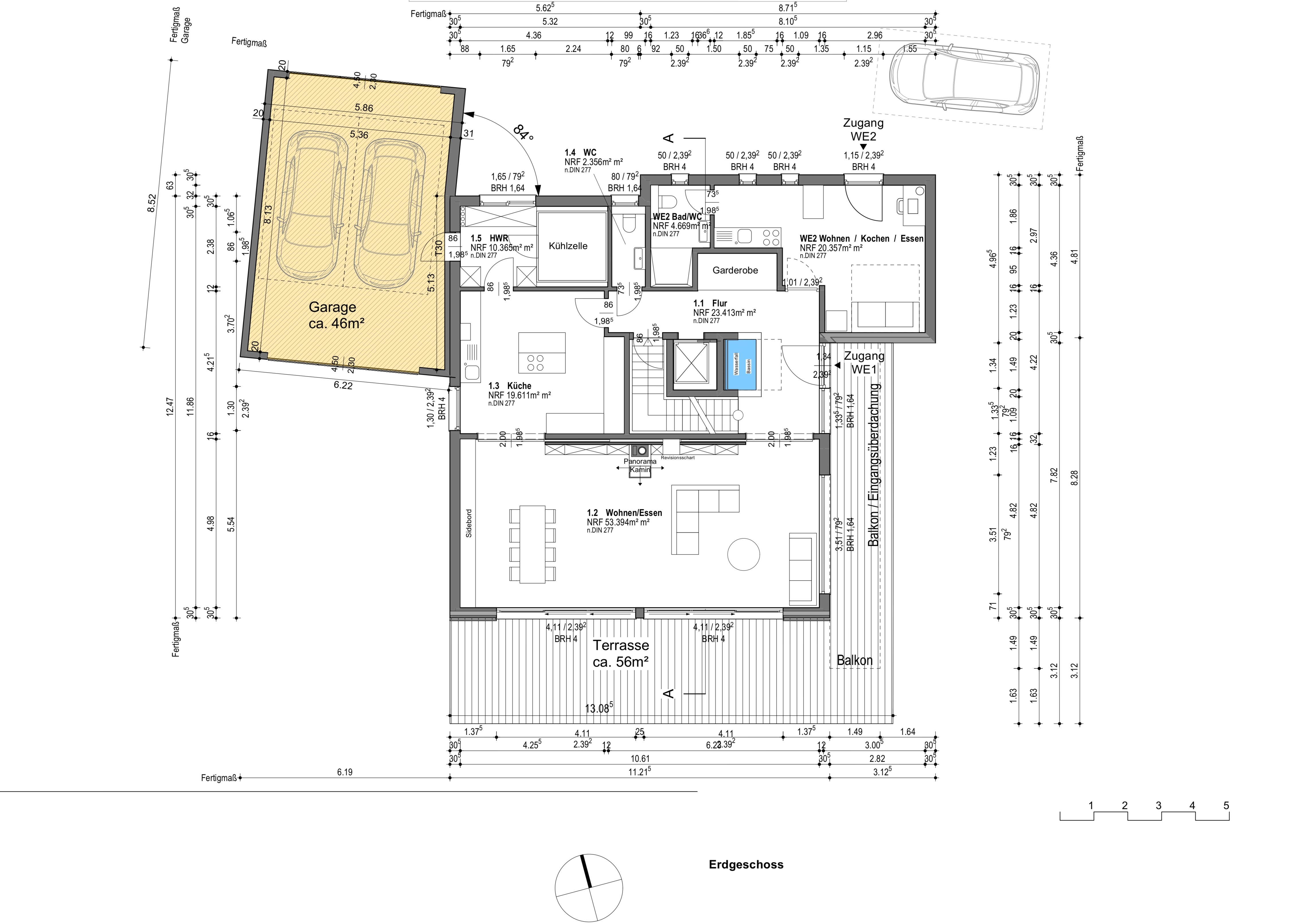
Efficiency, Clarity, and Functional Hierarchy. Every square meter serves a defined purpose, and the movement (circulation) within the house is minimized and carefully segregated between public and private life.
The core concept is the vertical separation of functions, which is highly characteristic of large European family homes:
• Erdgeschoss (EG) / Ground Floor: The Public/Social Zone
o Dedicated to daily living, receiving guests, cooking, dining, and utility tasks.
o High emphasis on circulation and connection to the exterior (garden/terrace).
• Obergeschoss (OG) / Upper Floor: The Private/Rest Zone
o Dedicated exclusively to sleeping, personal hygiene, and long-term private relaxation.
o Maximum privacy and minimal through-traffic.
